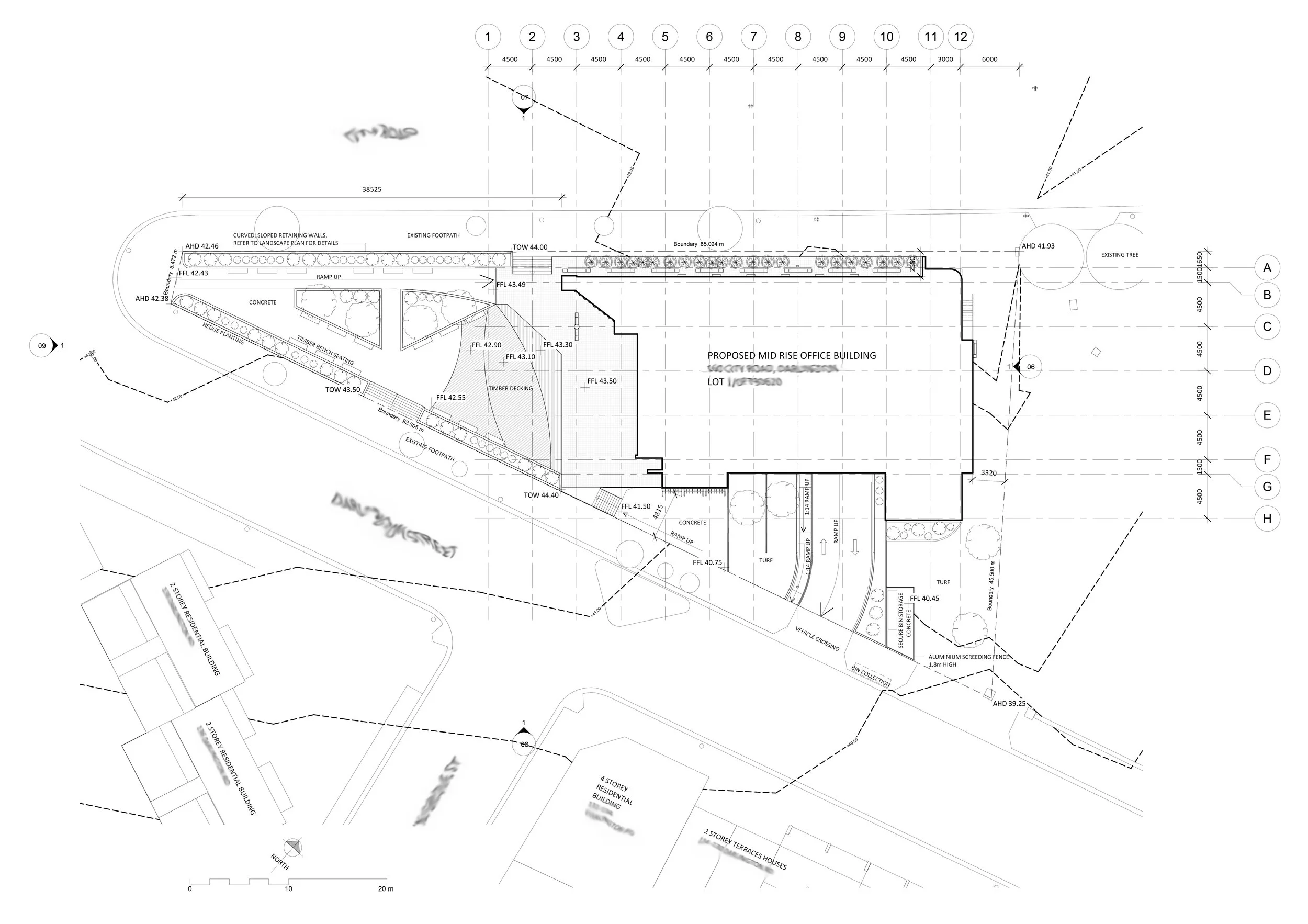
OneSixty is a six-storey commercial midrise designed to bring together work, retail, and hospitality spaces within a cohesive, light-filled structure. A combination of concrete and glazed curtain wall elements creates a strong architectural presence while maximising daylight and visual connection between interior and exterior spaces. Landscaped zones at ground level and on the rooftop provide opportunities for connection and retreat, reinforcing a sense of balance between the built environment and nature. The design prioritises transparency, accessibility, and social interaction — creating a building that contributes positively to its urban context.

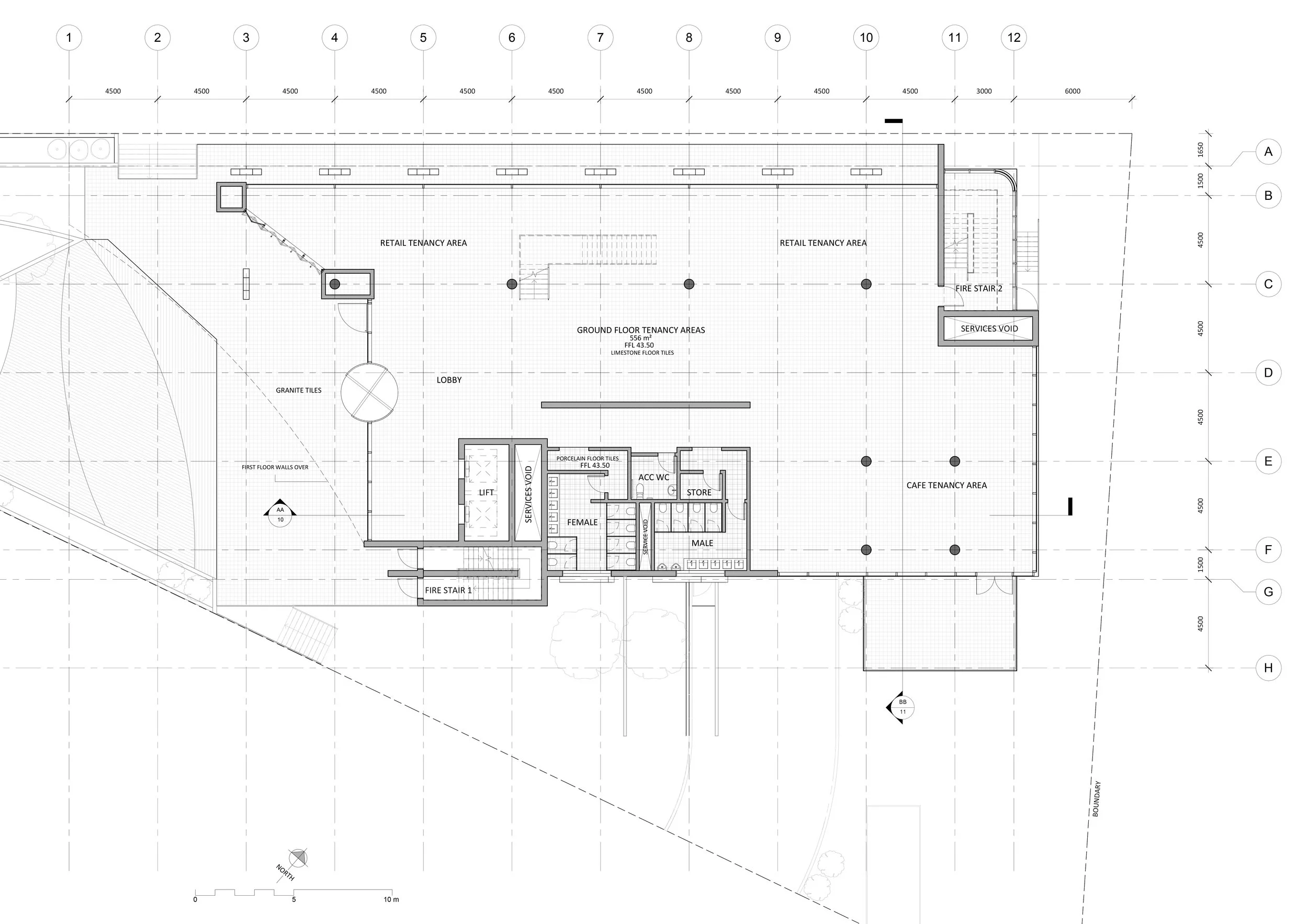
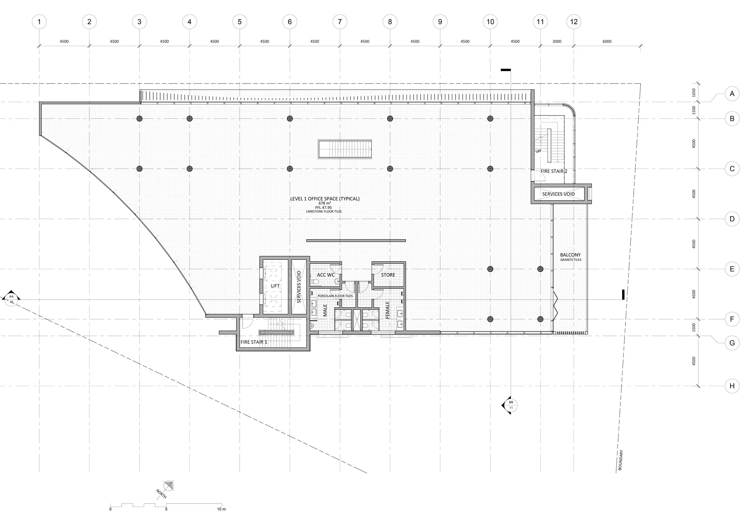
The interior fit-out explores how texture, light, and spatial planning can shape the user experience. The ground floor includes a reception area, amenities, café, and retail and exhibition spaces designed for visual connection and ease of movement, while the upper-level office demonstrates flexibility and comfort in a contemporary workplace setting.